Продаж 4 кім квартири Салтовка

Яни Червоної, 11а, Харків

210 000$

1400$/м²

Людмила

Людмила

Real estate specialist

телефон 0931776509

or leave the number and we will call you back within 2 minutes

Description

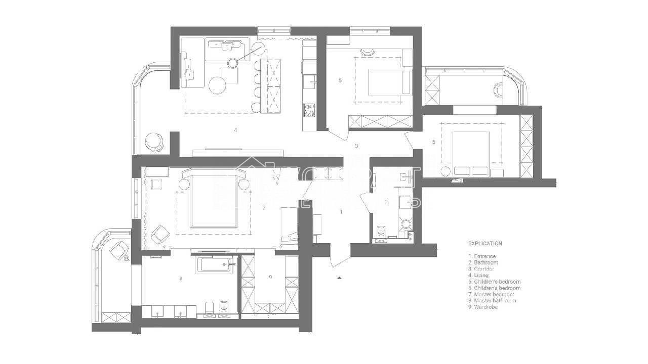
Код об’єкту 22113 Продам простору 4-кімнатну квартиру на Салтівці, за адресою вул. Джерельна. Загальна площа — 150 м². Планування продумане до дрібниць: три окремі спальні кімнати два санвузли простора кухня з робочою зоною зручна прихожа У квартирі виконано дизайнерський ремонт преміальної якості — рівень та стиль повністю відповідають фото. Використовувалися виключно дорогі та перевірені матеріали відомих виробників, а меблі виготовлялися на замовлення. Уся меблі та побутова техніка входять у вартість, а саме: 2 телевізори пральна машина посудомийна машина вмонтований холодильник вмонтована морозильна камера 4 кондиціонери Для максимального комфорту встановлено теплу підлогу у прихожій, санвузлах та робочій зоні кухні. Будинок зданий у 2018 році. Додаткові переваги, що входять у вартість: кладова кімната на поверсі з окремим входом гараж на одну автівку у ГК «Дружба» (вул. Бучми) Характеристики гаража: довжина — 6 м ширина — 2,90 м висота — 2,60 м автоматичні ролети (ворота: висота 2,10 м, ширина 2,40 м) заведене електропостачання є погріб Це ідеальний варіант для великої родини, яка цінує простір, якість, комфорт і готовність житла “під ключ”.

Characteristics

Article 22113
District Північна салтівка
Metros

Салтівська (1.4км)

Is new house Yes
Total area 150м²
Kitchen area 15м²
Rooms count 4
Floor 12 / 17
Heating Централизованное
Gas Нет
Planning Улучшенная планировка
Repair Авторский дизайн

Inspect the property before you buy

Get a legal due diligence on your property to minimize your risks

  • Number of owners
  • The presence of encumbrances
  • Is there a mortgage?
  • Years of property ownership

Sign up for viewing

A real estate specialist will contact you, confirm the selected viewing time, arrange a visit to the offer and give you a tour.

Calculate the mortgage

We can calculate a mortgage with no down payment, just specify 0%.

Agreement security guarantee

You are under reliable protection - in case of disputed situations, we bear all costs.

More details

Time to go

Find out the time to work, school or kindergarten

Build a route карта

You may be interested

News

  • Краєвид на місто

    The Future of Real Estate: Emerging Trends and Technologies

    Read
Людмила

Людмила

Real estate specialist

телефон 0931776509

or leave the number and we will call you back within 2 minutes