Оренда комерції 216 м² ЖК Джерела 2 рівні Салтівка

Яни Червоної, 9А, Харків

21 600₴

100₴/м²

Авдиенко Галина

Авдиенко Галина

Real estate specialist

телефон 0957102051 телефон 0931775975

or leave the number and we will call you back within 2 minutes

Description

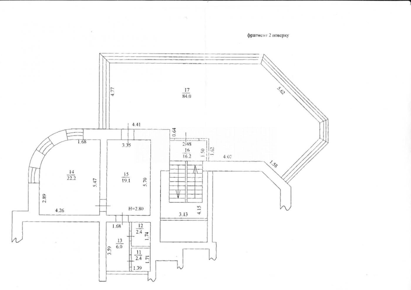
Код об'єкту: #24974 Здається в довгострокову оренду просторе універсальне приміщення у сучасному житловому комплексі «Джерела». Чудовий варіант для бізнесу, який цінує стиль, простір та активний потік потенційних клієнтів. ХАРАКТЕРИСТИКИ ТА ПЛАНУВАННЯ (216 м²): 1-й ПОВЕРХ: Основна зала: світле та просторе приміщення для прийому відвідувачів. Кладова: окреме місце для зберігання товару, обладнання або інвентарю. 2-й ПОВЕРХ: Велика зала з панорамними вікнами: ідеальний простір з великою кількістю природного світла — ваша найкраща вітрина або зона відпочинку. Санвузол: повністю облаштований. Приміщення «півколом»: незвичайна архітектурна форма, що додасть унікальності вашому інтер’єру (ідеально під кабінет, VIP-зону або студію). Прохідне приміщення: функціональна зона без вікон (підсобка, серверна або архів). Автономне електричне опалення , лічильники, охоронна та пожарна сигналізація, ремонт, душова кабіна з бойлером. ІДЕАЛЬНО ПІДХОДИТЬ ПІД: Магазин або Аптеку: (активний пішохідний трафік комплексу). Офіс або Коворкінг: (тиха атмосфера та багато світла). Салон краси / Клініку: (зручне зонування під кабінети). Шоурум або Дизайн-студію. УМОВИ ОРЕНДИ: Оплата: Орендна плата світло за лічильником. Гнучкі умови для відповідального орендаря. Важливо: На даний момент панорамні вікна на 2-му поверсі потребують заміни/ремонту. Умови та терміни заміни вікон обговорюються безпосередньо з орендодавцем, Приміщення має величезний потенціал, пільговий період для запуску вашого бізнесу- перші 3 місяця. ПЕРЕВАГИ: Розташування в обжитому ЖК із платоспроможною аудиторією. Окремий вхід. Два рівні дозволяють грамотно розділити робочу зону та зону відпочинку чи складу. Готові до перегляду у зручний для вас час! Не втратьте можливість розвивати свій бізнес в одній із найкращих локацій. Телефонуйте прямо зараз!

Characteristics

Article 24974
District Північна салтівка
House complex ЖД Джерела
Metros

Салтівська (1.4км)

Is new house No
Total area 217м²
Rooms count 4
Floor 1 / 16
Gas Нет
Repair Капитальный ремонт
Building type Встроенное помещение

Inspect the property before you buy

Get a legal due diligence on your property to minimize your risks

  • Number of owners
  • The presence of encumbrances
  • Is there a mortgage?
  • Years of property ownership

Sign up for viewing

A real estate specialist will contact you, confirm the selected viewing time, arrange a visit to the offer and give you a tour.

Calculate the mortgage

We can calculate a mortgage with no down payment, just specify 0%.

Agreement security guarantee

You are under reliable protection - in case of disputed situations, we bear all costs.

More details

Time to go

Find out the time to work, school or kindergarten

Build a route карта

The cost of similar apartments in the city

Similar apartments are selected according to similar parameters: roominess, number of floors, wall material, repair, year

You may be interested

News

  • Краєвид на місто

    The Future of Real Estate: Emerging Trends and Technologies

    Read
Авдиенко Галина

Авдиенко Галина

Real estate specialist

телефон 0957102051 телефон 0931775975

or leave the number and we will call you back within 2 minutes