Продам двокімнатну квартиру за адресою проспект Байрона 189

Байрона, 189, Харьков

27 000$

562$/м²

Бабак Марія

Бабак Марія

Специалист по недвижимости

телефон 0993438419 телефон 0987910987

или оставьте номер, и мы вам перезвоним в течение 2 минут

Описание

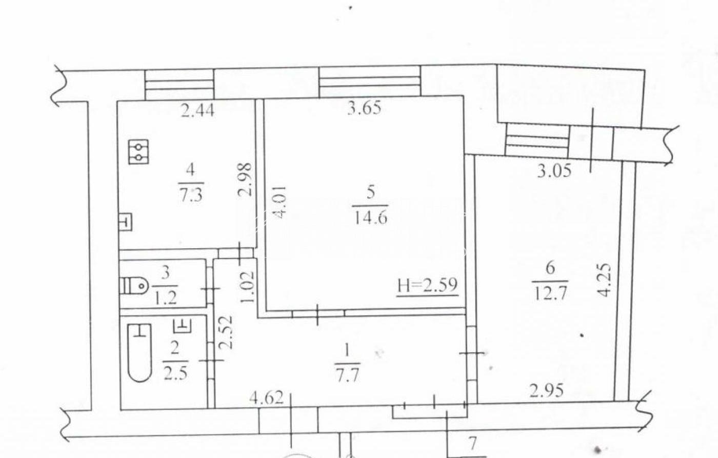
Продам двокімнатну квартиру за адресою: проспект Байрона, 189 Третій поверх дев'ятиповерхового цегляного будинку – теплий, затишний, із гарною шумоізоляцією. У квартирі зроблено частковий ремонт: повністю оновлено санвузол та кухня, решта – під ремонт, що дозволить вам оформити простір на свій смак. Будинок розташований в районі з розвиненою інфраструктурою: поруч зупинки, магазини, школа, дитячий садок та чудова транспортна розв'язка. Ідеальний варіант для тих, хто хоче створити житло під себе чи вигідно інвестувати.

Характеристики

Артикул 20587
Район Новые Дома
Новый дом Нет
Общая площадь 48м²
Жилая площадь 28м²
Площадь кухни 8м²
Количество комнат 2
Этаж 3 / 9
Газ Есть
Планировка Нестандартная планировка
Отопление Централизованное

Проверьте недвижимость перед покупкой

Получите юридическую проверку недвижимости для минимизации рисков

  • Количество владельцев
  • Наличие обременений
  • Есть ли ипотека
  • Годы владения недвижимостью

Записаться на просмотр

С вами свяжется специалист по недвижимости, подтвердит выбранное время просмотра, организует посещение предложения и проведет экскурсию.

Рассчитать ипотеку

Можем рассчитать ипотеку без первоначального взноса, просто укажите 0%.

Гарантии безопасности соглашения

Вы под надежной защитой – в случае спорных ситуаций берем все расходы на себя.

Подробнее

Время на дорогу

Узнайте время для работы, школы или детского сада

Построить маршрут карта

Стоимость аналогичных объектов по городу

Аналогичные квартиры подбираются по подобным параметрам: комнатность, этажность, материал стен, ремонт, год.

Вас может заинтересовать

Новости

  • Краєвид на місто

    Майбутнє нерухомості: Емержентні тенденції та технології

    Читать
Бабак Марія

Бабак Марія

Специалист по недвижимости

телефон 0993438419 телефон 0987910987

или оставьте номер, и мы вам перезвоним в течение 2 минут