









Карта
Здаються в оренду комерційні приміщення на Салтівці
Світла, 11А, Харків
80₴
2₴/м²

Семернина Ирина
Спеціаліст з нерухомості


або залиште номер, і ми вам передзвонимо протягом 2 хвилин
Опис
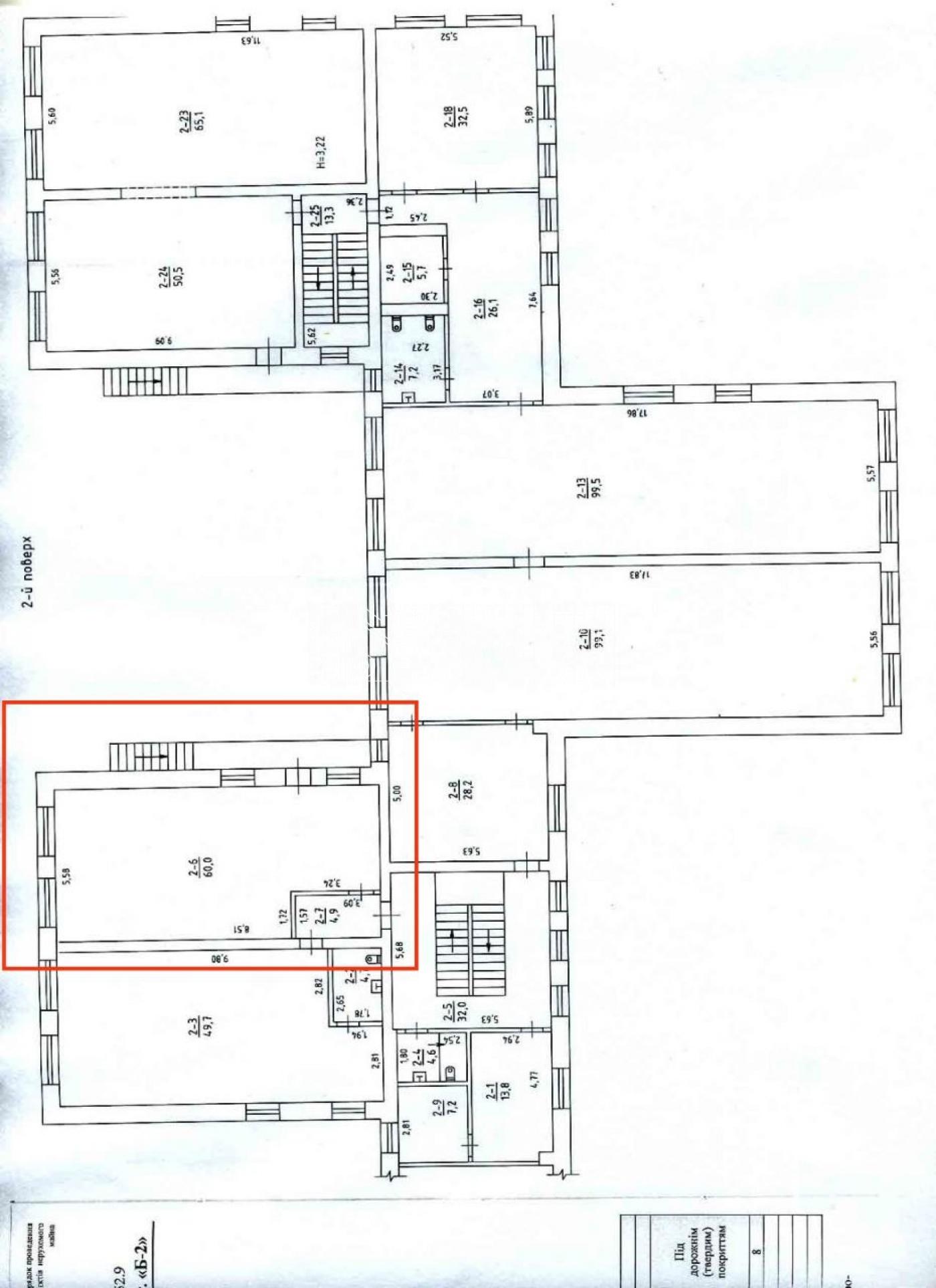
Код 9869Сдаются в аренду помещения производственно-складского и офисного назначения различной площади с высотой помещений 3,14 м. в отдельно стоящем двухэтажном здании на закрытой, охраняемой территории с собственной парковкой по адресу ул. Светлая, 11А в городе Харькове.Здание расположено в зеленой зоне в пешей доступности от жилого массива, метрополитена, отделения почты, супермаркетов Класс и АТБ.Здание оборудовано автономной котельной, санитарными узлами, ‘охранной и пожарной сигнализацией, в здании находится круглосуточная охрана, на окнах установлены решетки. Подведенная мощность электроэнергии 100 кВт, напряжением 380 В.Технические характеристики и расположение здания позволяют использовать помещения в качестве швейного, обувного, сборочного, фасовочного, полиграфического и других аналогичных производств.Арендная плата составляет 70 грн. за 1 м.кв.Оплата электроэнергии, воды и отопления по счетчикам.
Характеристики
Артикул | 9869 |
---|---|
Район | Салтівка |
Новий будинок | Ні |
Загальна площа | 50м² |
Кількість кімнат | 1 |
Поверх | 2 / 2 |
Ремонт | Без ремонта |
Опалення | Индивидуальное |
Газ | Нет |
Перевірте нерухомість перед покупкою
Отримайте юридичну перевірку нерухомості для мінімізації ризиків
- Кількість власників
- Наявність обтяжень
- Чи є іпотека
- Роки володіння нерухомістю
Записатись на перегляд
З вами зв'яжеться спеціаліст з нерухомості, підтвердить обраний час перегляду, організує відвідування пропозиції та проведе вам екскурсію.
Розрахувати іпотеку
Можемо розрахувати іпотеку без початкового внеску, просто вкажіть 0%.
Гарантії безпеки угоди
Ви під надійним захистом - у разі спірних ситуацій беремо всі витрати на себе.
Вас може зацікавити
Новини

Семернина Ирина
Спеціаліст з нерухомості


або залиште номер, і ми вам передзвонимо протягом 2 хвилин